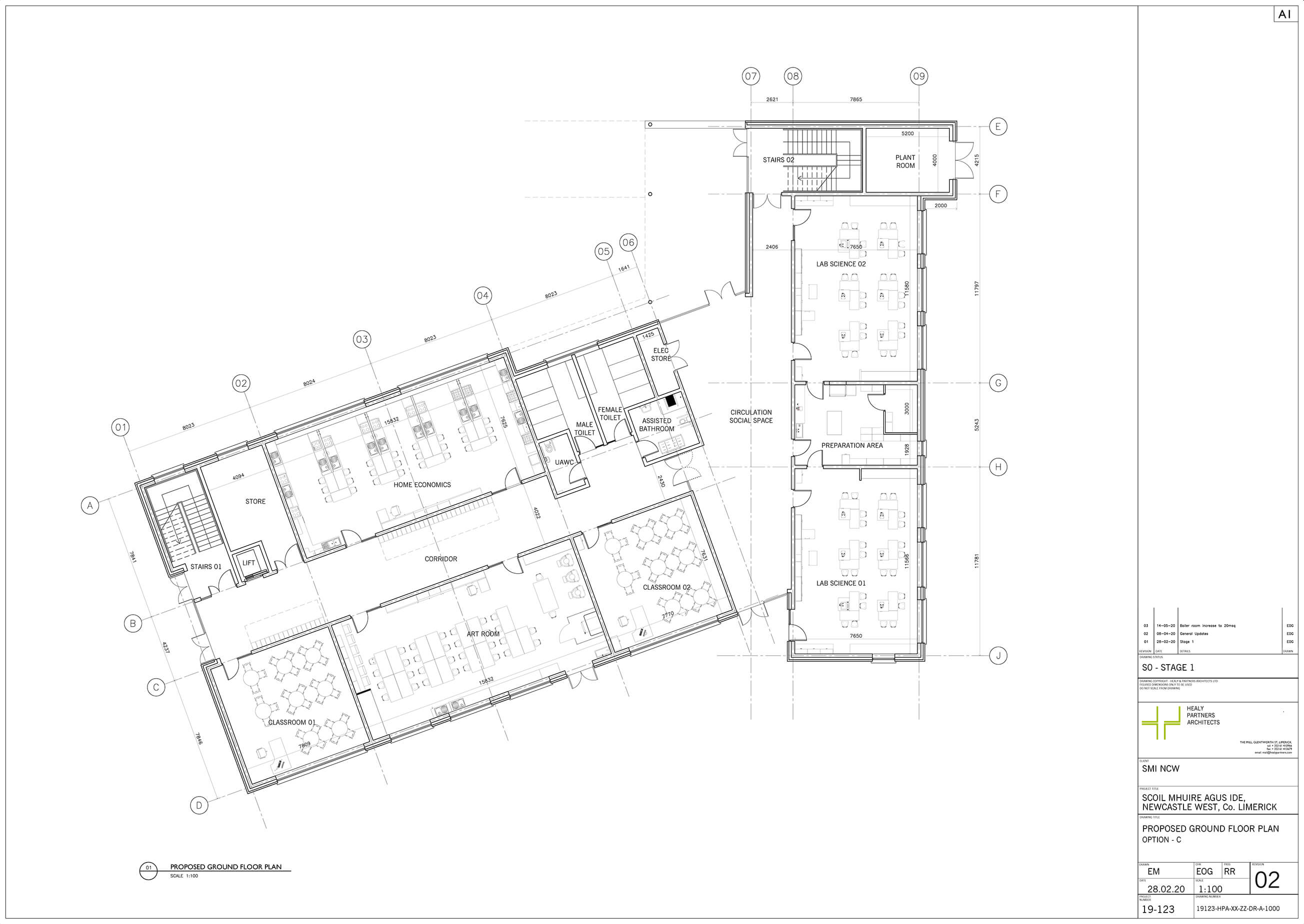
New Extension

3 Special Tuition Rooms
7 General Classrooms
Design & Communications Graphic Room
Home Economics Room
Art Room
Science Lab
Student areas and Toilets
Multimedia Room

Classroom Extension

The school is currently in the design stage of an extension. This extension is being funded by the Department of Education as a newly enhanced enrollment of 750 students has been agreed between both parties. The design team is currently working on designing a number of proposals to be presented to the DES.

This application will also include car parking extensions and flood water alleviation requirements.

The school has also made an application to the DES for the addition of an ASD unit. We are awaiting a reply from the DES.

The granting of this extension has ensured that Scoil Mhuire agus Íde can continue to offer the students of the locality a broad education and state of the art facilities. We resend years the school has been able to add numerous subjects to the curriculum and these additions can now continues unabated to offer our students all the latest subjects had the DES has to

Click images to enlarge or
download PDF